平成30年築、積水ハウス施工の築浅邸宅。
高級仕様「ダインコンクリート」外壁を採用した、品質の高さが際立つ一邸です。
南西角地という恵まれた立地に加え、太陽光発電+エネファーム搭載で、これからの暮らしにもフィットします。
|ここがポイント!
・伊勢鉄道伊勢上野駅徒歩17分 / バスアカシア集会所停歩5分
・南西角地で日当たり・風通し良好
・太陽光発電+エネファーム搭載(省エネ住宅)
・駐車3台可能
・ウッドデッキ付きで外とつながる暮らし

|詳細
構造:軽量鉄骨造2階建
建築時期:2018年9月(築7年8ヶ月)
敷地面積:182.48m²(約55.2坪)
延床面積:127.82㎡(約38.7坪)
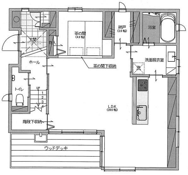
【1F】

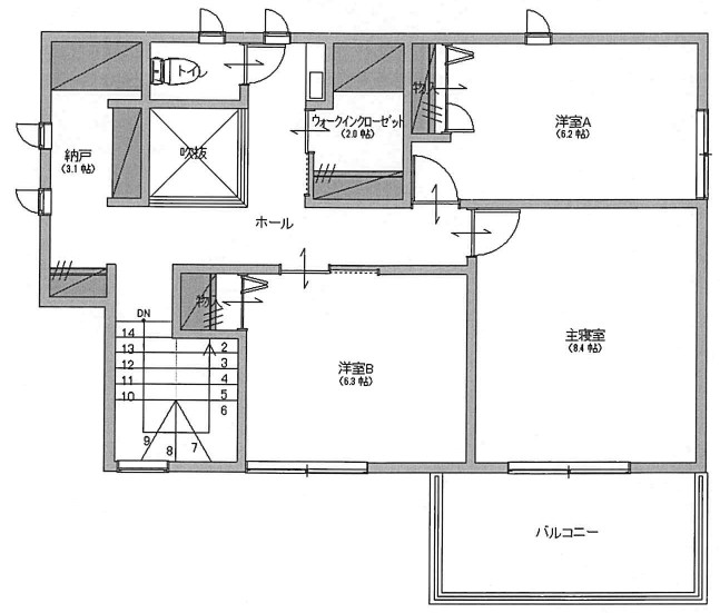
【2F】

|設備・仕様
・電動シャッター
・IHキッチン/食洗機
・タンクレストイレ/トイレ2ヶ所
・食洗機+3口IHクッキングヒーター
・Low-Eガラス/複層ガラス
・太陽光発電システム
・エネファーム

建物・立地・設備、すべてが高水準の物件です。
・光熱費を抑えながら快適に暮らしたい方
・“長く住む前提”で家を探している方
におすすめです。
PLAN
PROPERTY DETAILS
シューズインクローゼット付
4LDK(畳コーナーあり)
2人並べる洗面化粧台
オートバス&追焚機能
ウォークインクローゼット付
ルーフバルコニー&ウッドデッキ
DETAIL
三重県津市河芸町杜の街3丁目
宅地
無指定
60%
100%
千里ヶ丘小学校・朝陽中学校
詳細本文にて
—
専任